JULIEN FLENET METREUR
Create Your First Project
Start adding your projects to your portfolio. Click on "Manage Projects" to get started
Réalisation de Scan 3D et Plan Architectural
Type du projet
Photographie
Date
Avril 2023
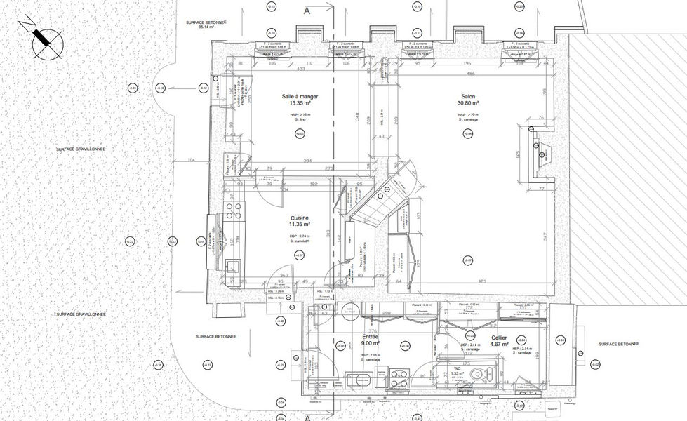
Je suis ravi de partager cette prestation pour un magnifique bâtiment normand en brique et silex. Mon objectif était de réaliser un scan 3D du bâtiment afin de produire un carnet de plans complet de l’existant, qui servira de base de travail pour la designer chargée de l’agencement de l’espace.
Un grand merci à Coline Laporte, designer du projet, pour sa confiance dans cette mission. 🤝
📐📐 Étapes Clés du Projet :
📷 Scan 3D Complet : Utilisation du scanner Leica BLK 360 G2 pour obtenir une modélisation précise et détaillée de l'intégralité du bâtiment.
💻 Analyse et Traitement des Données : Assemblage des stations et génération du nuage de points sur le logiciel CycloneRegister360.
🏛 Réalisation des Plans de l'Existant : Élaboration de plans précis et détaillés de l’existant sur le logiciel Autocad, respectant les spécificités architecturales du bâtiment grâce au nuage de points.















